Le attività principali

Le attività organizzate dalla Associazione di Promozione Sociale La Ferriera sono pianificate durante tutto il corso dell’anno

Rigenerazione della ferriera

Il restauro dell’edificio renderà il complesso agibile al pubblico e al suo interno si svolgeranno attività artistiche, culturali e sociali

LABORATORI ARTIGIANALI

EVENTI CULTURALI

MUSEO DELLA FERRIERA

GALLERIA PERMANENTE ARTE CONTEMPORANEA

MOSTRE DI ARTE CONTEMPORANEA

MUSEO DELLA FERRIERA

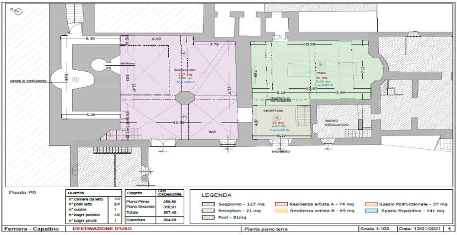
Per un totale di 600 mq

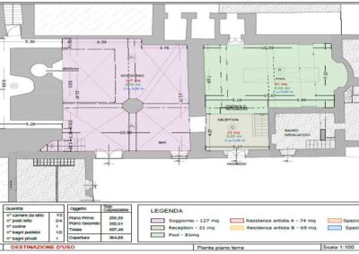
SALE ESPOSITIVE

  • piano terra 256 Mq
  • piano superiore di circa 350 Mq

EVENTI CULTURALI e CONVEGNI

  • piano terra 256 Mq
  • piano superiore di circa 350 Mq

SPAZI MULTIFUNZIONALI

  • piano terra: SALE ESPOSITIVE
  • piano superiore: FORESTERIA – RESIDENZA ARTISTA – Atelier condivisi e UFFICI

Hortus Conclusus

Giardino della Ferriera
Maggio – Giugno 2021

HORTUS CONCLUSUS è il primo grande evento dell’Associazione La Ferriera e sarà realizzato a maggio 2021. Il Giardino dell Ferriera sarà aperto per le visite alle installazioni artistiche esposte, attraverso i tour guidati rivolti agli appassionati di arte contemporanea.

HORTUS CONCLUSUS

Mostra espositiva temporanea organizzata presso gli spazi della Ferriera. L’accesso è consentito solo attraverso prenotazione.

Treeline Residence

III edizione SUmmer 2021

Treeline è un programma biennale di residenza per artisti, che mira a favorire un’esperienza professionale, attraverso il confronto con il territorio, la produzione di opere, la loro esposizione e l’organizzazione di conferenze.

Il Giardino Scuola è uno spazio didattico
alternativo all’edificio scolastico
che può garantire diversità al setting educativo
attraverso l’outdoor education.

Giardino scuola

Un approccio sensoriale ed esperienzale
in grado di pontenziare le competenze emotivo
affettive-relazionali espressivo-creative e senso-motorie,
rafforzando il senso di rispetto per l’ambiente

Contattaci

+39 333 528 3410

info.laferriera@gmail.com

Strada Pescia Fiorentina Chiarone 9 Capalbio (GR), 58011